ZpětÚvodNemovitosti StrakoniceKomerční prostory StrakonicePronájem komerční prostory StrakonicePronájem obchodní prostory StrakonicePRONÁJEM OBCHODNÍHO PROSTORU 58,23 M2 V PASÁŽI OC MAXIM STRAKONICE (NOVÁ PŘÍSTAVBA) - Č.18
PRONÁJEM OBCHODNÍHO PROSTORU 58,23 M2 V PASÁŽI OC MAXIM STRAKONICE (NOVÁ PŘÍSTAVBA) - Č.18
Záložky
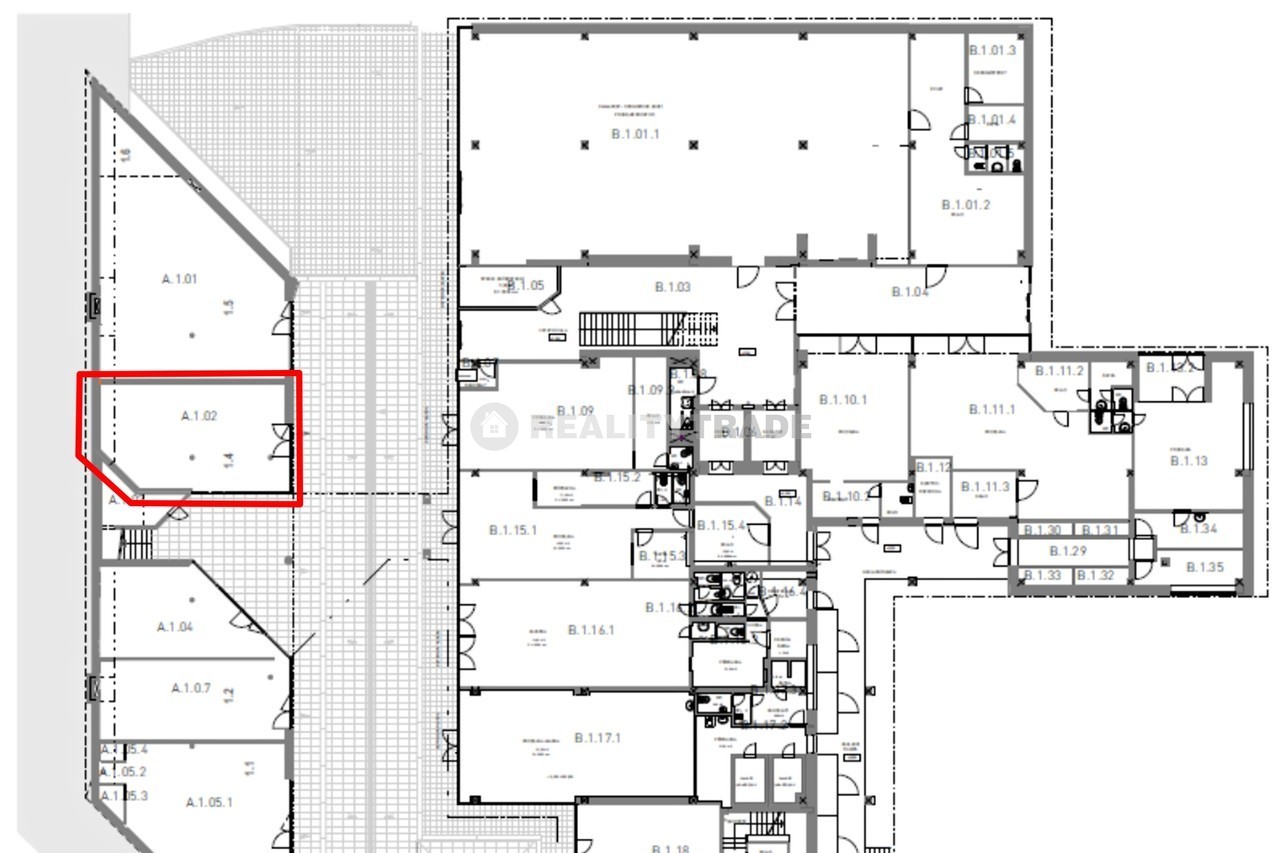
Pronájem obchodního, komerčního prostoru 58,23 m2 v pasáži OC Maxim, v centru okresního města Strakonice, vhodného pro obchod či služby. K dispozici od 1. 6. 2026. Nájemník musí být plátcem DPH!
Popis nemovitosti
Nabízíme pronájem komerčního prostoru č. 18, č. A.1.02 o rozloze 58,23 m2 v 1.NP (přízemí) OC Maxim v centru Strakonic. Vhodné využití na obchod nebo služby. Jedná se o provozovnu, kde jsou instalovány minerální podhledy, nová světla a nové výkladce i vstupní dveře. Podlahová krytina - dlažba. Světl...
| Cena: | 18.900 Kč(za měsíc)Cena je uvedena bez DPH |
|---|---|
| Lokalita: | Strakonice II, Strakonice, Jihočeský |
| Stav nabídky: | aktuální |
| Číslo: | 879 |
| Typ reality: | Obchodní prostory - Komerční prostory |
| Plocha: | 58 m2 |
Kontakt na makléře
Nahravam...
Vlastnosti nemovitosti
| Elektro 230V: | Ano |
|---|---|
| Elektro 400V: | Ano |
| Topení elektro: | Ano |
| Užitná plocha: | 58 m2 |
|---|---|
| Zastavěná plocha: | 2500 m2 |
| Plocha nebytových prostor: | 4200 m2 |
| Technologie výstavby: | montovaná |
|---|---|
| Stav objektu: | velmi dobrý |
| Umístění objektu: | centrum obce |
| Celkový počet podlaží: | 3 |
| Počet parkovacích míst: | 200 |
| Parkoviště: | Ano |
|---|---|
| Bezbariérový přístup: | Ano |
| Výtah: | Ano |
| Sociální zařízení: | Ano |
| Telefon: | Ano |
|---|---|
| Internet: | Ano |
| Datové rozvody: | Ano |
| Železnice: | Ano |
|---|---|
| Autobus: | Ano |
| MHD: | Ano |
| Třída energetické náročnosti budovy: | D - Méně úsporná |
|---|---|
| Energetická certifikace: | Nová |
| Energetický průkaz: | Stáhnout |
| Energetická náročnost: | 152 kWh/m2 za rok |
Doplňující obsah
Hledání nemovitosti
Hlídací pes - poptávka
Rychlý kontakt
REALITYTRADE
Pracejovice 8
386 01 Strakonice
Tel.: +420 602 271 334
E-mail: reality@realitytrade.cz




















